

  
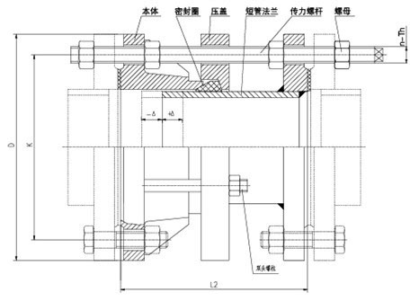
	CF型單法蘭松套傳力接頭性能特點:
松套傳力接頭是在法蘭松套補償接頭的基礎上增設法蘭短管及傳力螺桿而成,次類型的補償接頭與松套補償接頭和松套限位補償接頭不同的是它的補償量是指在安裝及拆卸過程中的調節量,一旦將所有的螺母擰緊,它是剛性連接的,可以傳遞軸心力,從而保護閥門、泵等設備。
 傳力接頭是泵、閥門等設備與管道連接的新產品,通過全螺栓把 
 它們連接起來,使其成為一個整體,并有一定的位移量,這樣就可以在安裝維修時,根據現場安裝尺寸進行調整,在工作時,可以把軸向推力傳還至整個管道。這樣不僅提高工作效率,而切對泵、閥們等設備起到一定保護作用。 
 CF型單法蘭松套傳力接頭是有松套伸縮接頭和短管法蘭、傳力螺桿等構件組成,它能傳遞被連接件的壓力推力(盲板力)和補償管路誤差,不能吸收軸向位移。重要用于泵、閥門、管路等附件的松套連接。
	CF型單法蘭松套傳力接頭優點:
 1.安裝簡單方便、方便閥門安裝、可承受管線的軸向拉力。
 2.該產品采用金屬鑄造或組成,松套部位選用梯形橡膠密封圈,在壓蓋和螺栓的作用下。
 3.利用橡膠壓縮彈性變形原理。迫使密封圈變形于接頭本體伸縮管外壁之間進行靜密封。
 4.金屬和密封圈嚴格按使用性能及用戶要求選用。材質外部涂裝度防腐漆料,各部連接螺栓為度碳鋼或不銹鋼制作。因為本體與伸縮管之間有一定間隙,使它具有一定的軸向和徑向位移。
 5.在管道中能的補償和管道和盲板推力,又能便于水泵,閥門的安裝維修更換,實為管道安裝運行業中理想的配套產品。 
CF型單法蘭松套傳力接頭使用范圍:
 1.因為該系列產品屬金屬制造品,其有較高的抗拉和抗壓強度,軟密封性能優越,裝卸方便等功能,常被應用于電力,冶金。
 2.給排水和污水處理等行業,主要作用于水泵與閥門和管道之間的連接。
 3.它在管道運行中有一定的多向位移作用,可以管道運行中的盲板推力,對管道起到一定保護作用,特別是對管道的安裝和維修提供了極大的便利,但是在水泵出口處和管道轉角處應采用傳力接頭,因為傳力接頭通過傳力螺栓(即全絲螺栓)能把啟泵時的盲板推力傳導到泵和管道各部位,避免推力集中于管道或泵的近端發生沖擊力損傷設備。
CF型單法蘭松套傳力接頭適用于一這與法蘭連接,一這與管道。安裝時調節產品兩端與管道或法蘭的安裝長度,安裝和完畢后,對角依次均勻擰緊壓蓋螺栓,使其成為一個整體,并有一定的位移量,方便安裝維修時,根據現場尺寸進生調整。在工作時可以把軸向推力傳遞至整個管道。
		
	
		CF型單法蘭松套傳力接頭安裝簡要說明:
CF型單法蘭松套傳力接頭適用于一這與法蘭連接,一這與管道。安裝時調節產品兩端與管道或法蘭的安裝長度,安裝和完畢后,對角依次均勻擰緊壓蓋螺栓,使其成為一個整體,并有一定的位移量,方便安裝維修時,根據現場尺寸進生調整。在工作時可以把軸向推力傳遞至整個管道。
	
		
	
技術參數:
		公稱通經:DN50-DN3200
工作壓力:0.6-1.6MPA
使用介質:水、污水
密封材料:NBR
制造標準:GB12465-2007
	
| 序號 | 名稱 | 數量 | 材料 | 
| 1 | 
					 
						本體
					 
				 | 
				
					 
						1
					 
				 | 
				
					 
						QT400-15、Q235A、ZG230-450、20
					 
				 | 
			
| 2 | 
					 
						密封圈
					 
				 | 
				
					 
						1
					 
				 | 
				
					 
						NBR
					 
				 | 
			
| 3 | 
					 
						壓蓋
					 
				 | 
				
					 
						1
					 
				 | 
				
					 
						QT400-15、Q235A、ZG230-450、20
					 
				 | 
			
| 4 | 
					 
						短管法蘭
					 
				 | 
				
					 
						1
					 
				 | 
				
					 
						Q235A、20、16Mn
					 
				 | 
			
| 5 | 
					 
						螺柱
					 
				 | 
				
					 
						n
					 
				 | 
				
					 
						Q235A、35、1Cr18Ni9Ti
					 
				 | 
			
| 6 | 
					 
						螺母
					 
				 | 
				
					 
						5n
					 
				 | 
				
					 
						Q235A、20、1Cr18Ni9Ti
					 
				 | 
			
| 
					 公稱通徑DN  | 
				
					 管子外徑  | 
				
					 外形尺寸  | 
				
					 法 蘭 連 接 尺 寸  | 
			|||||||||
| 
					 L  | 
				
					 △L  | 
				
					 0.6MPa  | 
				
					 1.0MPa  | 
			|||||||||
| 
					 
						Dw
					 
				 | 
				
					 | 
				
					 D  | 
				
					 D1  | 
				
					 n-Th  | 
				
					 b  | 
				
					 D  | 
				
					 D1  | 
				
					 n-Th  | 
				
					 b  | 
			|||
| 
					 
						65
					 
				 | 
				
					 76  | 
				
					 76  | 
				
					 400  | 
				
					 40  | 
				
					 
						160
					 
				 | 
				
					 
						130
					 
				 | 
				
					 
						4-M12
					 
				 | 
				
					 
						16
					 
				 | 
				
					 185  | 
				
					 145  | 
				
					 
						4-M16
					 
				 | 
				
					 
						20
					 
				 | 
			
| 
					 
						80
					 
				 | 
				
					 
						89
					 
				 | 
				
					 
						89
					 
				 | 
				
					 
						190
					 
				 | 
				
					 
						150
					 
				 | 
				
					 
						4-M16
					 
				 | 
				
					 
						18
					 
				 | 
				
					 200  | 
				
					 160  | 
				
					 
						8-M16
					 
				 | 
				
					 
						22
					 
				 | 
			||
| 
					 
						100
					 
				 | 
				
					 
						114
					 
				 | 
				
					 
						114
					 
				 | 
				
					 
						210
					 
				 | 
				
					 
						170
					 
				 | 
				
					 220  | 
				
					 180  | 
				
					 
						24
					 
				 | 
			|||||
| 
					 
						125
					 
				 | 
				
					 
						140
					 
				 | 
				
					 
						140
					 
				 | 
				
					 
						240
					 
				 | 
				
					 
						200
					 
				 | 
				
					 
						8-M16
					 
				 | 
				
					 
						20
					 
				 | 
				
					 250  | 
				
					 210  | 
				
					 
						26
					 
				 | 
			|||
| 
					 
						150
					 
				 | 
				
					 
						168
					 
				 | 
				
					 
						168
					 
				 | 
				
					 
						265
					 
				 | 
				
					 
						225
					 
				 | 
				
					 285  | 
				
					 240  | 
				
					 
						8-M20
					 
				 | 
			|||||
| 
					 
						200
					 
				 | 
				
					 
						219
					 
				 | 
				
					 
						219
					 
				 | 
				
					 
						320
					 
				 | 
				
					 
						280
					 
				 | 
				
					 
						22
					 
				 | 
				
					 340  | 
				
					 295  | 
				
					 
						28
					 
				 | 
			||||
| 
					 
						250
					 
				 | 
				
					 
						273
					 
				 | 
				
					 
						273
					 
				 | 
				
					 
						375
					 
				 | 
				
					 
						335
					 
				 | 
				
					 
						12-M16
					 
				 | 
				
					 
						24
					 
				 | 
				
					 395  | 
				
					 350  | 
				
					 
						12-M20
					 
				 | 
			|||
| 
					 
						300
					 
				 | 
				
					 
						325
					 
				 | 
				
					 
						325
					 
				 | 
				
					 420  | 
				
					 50  | 
				
					 
						440
					 
				 | 
				
					 
						395
					 
				 | 
				
					 
						12-M20
					 
				 | 
				
					 
						24
					 
				 | 
				
					 445  | 
				
					 400  | 
				
					 
						12-M20
					 
				 | 
				
					 
						28
					 
				 | 
			
| 
					 
						350
					 
				 | 
				
					 
						377
					 
				 | 
				
					 
						377
					 
				 | 
				
					 
						490
					 
				 | 
				
					 
						445
					 
				 | 
				
					 
						26
					 
				 | 
				
					 505  | 
				
					 460  | 
				
					 
						16-M20
					 
				 | 
				
					 
						30
					 
				 | 
			|||
| 
					 
						400
					 
				 | 
				
					 
						426
					 
				 | 
				
					 
						426
					 
				 | 
				
					 
						540
					 
				 | 
				
					 
						495
					 
				 | 
				
					 
						16-M20
					 
				 | 
				
					 
						28
					 
				 | 
				
					 565  | 
				
					 515  | 
				
					 
						16-M24
					 
				 | 
				
					 
						32
					 
				 | 
			||
| 
					 
						450
					 
				 | 
				
					 
						480
					 
				 | 
				
					 
						480
					 
				 | 
				
					 
						595
					 
				 | 
				
					 
						550
					 
				 | 
				
					 615  | 
				
					 565  | 
				
					 
						20-M24
					 
				 | 
				
					 
						32
					 
				 | 
			||||
| 
					 
						500
					 
				 | 
				
					 
						530
					 
				 | 
				
					 
						530
					 
				 | 
				
					 
						645
					 
				 | 
				
					 
						600
					 
				 | 
				
					 
						20-M20
					 
				 | 
				
					 
						30
					 
				 | 
				
					 670  | 
				
					 620  | 
				
					 
						34
					 
				 | 
			|||
| 
					 
						600
					 
				 | 
				
					 
						630
					 
				 | 
				
					 
						630
					 
				 | 
				
					 440  | 
				
					 
						755
					 
				 | 
				
					 
						705
					 
				 | 
				
					 
						20-M24
					 
				 | 
				
					 780  | 
				
					 725  | 
				
					 
						20-M27
					 
				 | 
				
					 
						36
					 
				 | 
			||
| 
					 
						700
					 
				 | 
				
					 
						720
					 
				 | 
				
					 
						720
					 
				 | 
				
					 
						860
					 
				 | 
				
					 
						810
					 
				 | 
				
					 
						24-M24
					 
				 | 
				
					 
						32
					 
				 | 
				
					 895  | 
				
					 840  | 
				
					 
						24-M27
					 
				 | 
				
					 
						40
					 
				 | 
			||
| 
					 
						800
					 
				 | 
				
					 
						820
					 
				 | 
				
					 
						826
					 
				 | 
				
					 600  | 
				
					 60  | 
				
					 
						975
					 
				 | 
				
					 
						920
					 
				 | 
				
					 
						24-M27
					 
				 | 
				
					 
						34
					 
				 | 
				
					 1015  | 
				
					 950  | 
				
					 
						24-M30
					 
				 | 
				
					 
						44
					 
				 | 
			
| 
					 
						900
					 
				 | 
				
					 
						920
					 
				 | 
				
					 
						926
					 
				 | 
				
					 
						1075
					 
				 | 
				
					 
						1020
					 
				 | 
				
					 
						24-M27
					 
				 | 
				
					 
						36
					 
				 | 
				
					 1115  | 
				
					 1050  | 
				
					 
						28-M30
					 
				 | 
				
					 
						46
					 
				 | 
			||
| 
					 
						1000
					 
				 | 
				
					 
						1020
					 
				 | 
				
					 
						1026
					 
				 | 
				
					 
						1175
					 
				 | 
				
					 
						1120
					 
				 | 
				
					 
						28-M27
					 
				 | 
				
					 1230  | 
				
					 1160  | 
				
					 
						28-M33
					 
				 | 
				
					 
						50
					 
				 | 
			|||
| 
					 
						1200
					 
				 | 
				
					 
						1220
					 
				 | 
				
					 
						1226
					 
				 | 
				
					 620  | 
				
					 
						1405
					 
				 | 
				
					 
						1340
					 
				 | 
				
					 
						32-M30
					 
				 | 
				
					 
						40
					 
				 | 
				
					 1455  | 
				
					 1380  | 
				
					 
						32-M36
					 
				 | 
				
					 
						56
					 
				 | 
			|
| 
					 
						1400
					 
				 | 
				
					 
						1420
					 
				 | 
				
					 
						1428
					 
				 | 
				
					 
						1630
					 
				 | 
				
					 
						1560
					 
				 | 
				
					 
						36-M33
					 
				 | 
				
					 
						44
					 
				 | 
				
					 1675  | 
				
					 1590  | 
				
					 
						36-M39
					 
				 | 
				
					 
						62
					 
				 | 
			||
| 
					 
						1600
					 
				 | 
				
					 
						1620
					 
				 | 
				
					 
						1628
					 
				 | 
				
					 630  | 
				
					 
						1830
					 
				 | 
				
					 
						1760
					 
				 | 
				
					 
						40-M33
					 
				 | 
				
					 
						48
					 
				 | 
				
					 1915  | 
				
					 1820  | 
				
					 
						40-M4
					 
				 | 
				
					 
						68
					 
				 | 
			|
| 
					 
						1800
					 
				 | 
				
					 
						1820
					 
				 | 
				
					 
						1828
					 
				 | 
				
					 
						2045
					 
				 | 
				
					 
						1970
					 
				 | 
				
					 
						44-M36
					 
				 | 
				
					 
						50
					 
				 | 
				
					 2115  | 
				
					 2020  | 
				
					 
						44-M45
					 
				 | 
				
					 
						70
					 
				 | 
			||
| 
					 
						2000
					 
				 | 
				
					 
						2020
					 
				 | 
				
					 
						2030
					 
				 | 
				
					 650  | 
				
					 
						2265
					 
				 | 
				
					 
						2180
					 
				 | 
				
					 
						48-M39
					 
				 | 
				
					 
						54
					 
				 | 
				
					 2325  | 
				
					 2230  | 
				
					 
						48-M45
					 
				 | 
				
					 
						74
					 
				 | 
			|
| 
					 
						2200
					 
				 | 
				
					 
						2220
					 
				 | 
				
					 
						2230
					 
				 | 
				
					 
						2475
					 
				 | 
				
					 
						2390
					 
				 | 
				
					 
						52-M39
					 
				 | 
				
					 
						60
					 
				 | 
				
					 2550  | 
				
					 2440  | 
				
					 
						52-M52
					 
				 | 
				
					 
						80
					 
				 | 
			||
| 
					 
						2400
					 
				 | 
				
					 
						2420
					 
				 | 
				
					 
						2430
					 
				 | 
				
					 
						2685
					 
				 | 
				
					 
						2600
					 
				 | 
				
					 
						56-M39
					 
				 | 
				
					 
						62
					 
				 | 
				
					 2760  | 
				
					 2650  | 
				
					 
						56-M52
					 
				 | 
				
					 
						82
					 
				 | 
			||
| 
					 
						2600
					 
				 | 
				
					 
						2620
					 
				 | 
				
					 
						2630
					 
				 | 
				
					 750  | 
				
					 80  | 
				
					 
						2905
					 
				 | 
				
					 
						2810
					 
				 | 
				
					 
						60-M45
					 
				 | 
				
					 
						64
					 
				 | 
				
					 2960  | 
				
					 2850  | 
				
					 
						60-M52
					 
				 | 
				
					 
						88
					 
				 | 
			
| 
					 
						2800
					 
				 | 
				
					 
						2820
					 
				 | 
				
					 
						2830
					 
				 | 
				
					 
						3115
					 
				 | 
				
					 
						3020
					 
				 | 
				
					 
						64-M45
					 
				 | 
				
					 
						68
					 
				 | 
				
					 3480  | 
				
					 3070  | 
				
					 
						64-M52
					 
				 | 
				
					 
						94
					 
				 | 
			||
| 
					 
						3000
					 
				 | 
				
					 
						3020
					 
				 | 
				
					 
						3030
					 
				 | 
				
					 
						3315
					 
				 | 
				
					 
						3220
					 
				 | 
				
					 
						68-M45
					 
				 | 
				
					 
						70
					 
				 | 
				
					 3405  | 
				
					 3290  | 
				
					 
						68-M56
					 
				 | 
				
					 | 
			||
 