

  
	功能介紹:
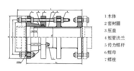
 雙法蘭松套傳力接頭,型號VSSJAF(1999標準)型,由法蘭式松套伸縮接頭和短管法蘭、傳力螺桿等構件組成。它能傳遞被連接件的壓力和推力(盲板力)和補償管路安裝誤差,不能吸收軸向位移,主要用于與泵、閥門等附件的松套連接。
 優點:安裝簡單當便、方便閥門安裝。
 特點:雙法蘭連接方式。
	VSSJAFC可拆式雙法蘭松套傳力接頭適用范圍:
VSSJAFC可拆式雙法蘭松套傳力接頭適用于輸送海水、淡水、冷熱水、飲用水、生活污水、原油、燃油、潤滑油、成品油、空氣、煤氣、溫度不高于250度的蒸汽和顆粒粉狀等介質。
VSSJAFC可拆式雙法蘭松套傳力接頭性能特點:
可拆式雙法蘭松套傳力接頭是在法蘭松套補償接頭的基礎上增設法蘭短管及傳力螺桿而成,次類型的補償接頭與松套補償接頭和松套限位補償接頭不同的是它的補償量是指在安裝及拆卸過程中的調節量,一旦將所有的螺母擰緊,它是剛性連接的,可以傳遞軸心力,從而保護閥門、泵等設備。
		功能介紹:
雙法蘭松套傳力接頭,型號VSSJAF(1999標準)型,由法蘭式松套伸縮接頭和短管法蘭、傳力螺桿等構件組成。它能傳遞被連接件的壓力和推力(盲板力)和補償管路安裝誤差,不能吸收軸向位移,主要用于與泵、閥門等附件的松套連接。
優點:安裝簡單當便、方便閥門安裝。
特點:雙法蘭連接方式。
 
	
		VSSJAFC可拆式雙法蘭松套傳力接頭安裝簡要說明:
VSSJAFC可拆式雙法蘭松套傳力接頭與法蘭連接的管路中,安裝時調節產品兩端與法蘭的安裝長度,對角依次均勻擰緊壓蓋螺栓,使其成為一個整體,并有一定的位移量,方便安裝維修時,根據現場尺寸進行調整。在工作時可以把軸向推力傳遞至正個管道。
可拆式雙法蘭松套傳力接頭的材質:主要有Q235碳鋼、不銹鋼、鑄鋼、球墨鑄鐵等。不同的用途選用不同的材質和型號。
	
		
	
技術參數:
| 稱通徑DN | 
					管子外徑 Dw  | 
				
					 外形尺寸  | 
				
					 法 蘭 連 接 尺 寸  | 
			||||||||
| 
					 L  | 
				
					 △L  | 
				
					 0.6MPa  | 
				
					 1.0MPa  | 
			||||||||
| 
					 D  | 
				
					 D1  | 
				
					 n-Th  | 
				
					 b  | 
				
					 D  | 
				
					 D1  | 
				
					 n-Th  | 
				
					 b  | 
			||||
| 
					 65  | 
				
					 76  | 
				200 | 40 | 160 | 130 | 4-M12 | 16 | 185 | 145 | 4-M16 | 20 | 
| 
					 80  | 
				89 | 190 | 150 | 4-M16 | 18 | 200 | 160 | 8-M16 | 22 | ||
| 
					 100  | 
				
					 114  | 
				
					 210  | 
				
					 170  | 
				
					 220  | 
				
					 180  | 
				
					 24  | 
			|||||
| 
					 125  | 
				
					 140  | 
				
					 240  | 
				
					 200  | 
				
					 8-M16  | 
				
					 20  | 
				
					 250  | 
				
					 210  | 
				
					 26  | 
			|||
| 
					 150  | 
				
					 168  | 
				
					 265  | 
				
					 225  | 
				
					 285  | 
				
					 240  | 
				
					 8-M20  | 
			|||||
| 
					 200  | 
				
					 219  | 
				
					 320  | 
				
					 280  | 
				
					 22  | 
				
					 340  | 
				
					 295  | 
				
					 28  | 
			||||
| 
					 250  | 
				
					 273  | 
				
					 375  | 
				
					 335  | 
				
					 12-M16  | 
				
					 24  | 
				
					 395  | 
				
					 350  | 
				
					 12-M20  | 
			|||
| 
					 300  | 
				
					 325  | 
				
					 220  | 
				
					 50  | 
				
					 440  | 
				
					 395  | 
				
					 12-M20  | 
				
					 24  | 
				
					 445  | 
				
					 400  | 
				
					 12-M20  | 
				
					 28  | 
			
| 
					 350  | 
				377 | 490 | 445 | 26 | 505 | 460 | 16-M20 | 30 | |||
| 
					 400  | 
				
					 426  | 
				
					 540  | 
				
					 495  | 
				
					 16-M20  | 
				
					 28  | 
				
					 565  | 
				
					 515  | 
				
					 16-M24  | 
				
					 32  | 
			||
| 
					 450  | 
				
					 480  | 
				
					 595  | 
				
					 550  | 
				
					 615  | 
				
					 565  | 
				
					 20-M24  | 
				
					 32  | 
			||||
| 
					 500  | 
				
					 530  | 
				
					 645  | 
				
					 600  | 
				
					 20-M20  | 
				
					 30  | 
				
					 670  | 
				
					 620  | 
				
					 34  | 
			|||
| 
					 600  | 
				
					 630  | 
				
					 240  | 
				
					 755  | 
				
					 705  | 
				
					 20-M24  | 
				
					 780  | 
				
					 725  | 
				
					 20-M27  | 
				
					 36  | 
			||
| 
					 700  | 
				
					 720  | 
				
					 860  | 
				
					 810  | 
				
					 24-M24  | 
				
					 32  | 
				
					 895  | 
				
					 840  | 
				
					 24-M27  | 
				
					 40  | 
			||
| 
					 800  | 
				
					 820  | 
				
					 350  | 
				
					 60  | 
				
					 975  | 
				
					 920  | 
				
					 24-M27  | 
				
					 34  | 
				
					 1015  | 
				
					 950  | 
				
					 24-M30  | 
				
					 44  | 
			
| 
					 900  | 
				
					 920  | 
				
					 1075  | 
				
					 1020  | 
				
					 24-M27  | 
				
					 36  | 
				
					 1115  | 
				
					 1050  | 
				
					 28-M30  | 
				
					 46  | 
			||
| 
					 1000  | 
				
					 1020  | 
				
					 1175  | 
				
					 1120  | 
				
					 28-M27  | 
				
					 1230  | 
				
					 1160  | 
				
					 28-M33  | 
				
					 50  | 
			|||
| 
					 1200  | 
				
					 1220  | 
				
					 370  | 
				
					 1405  | 
				
					 1340  | 
				
					 32-M30  | 
				
					 40  | 
				
					 1455  | 
				
					 1380  | 
				
					 32-M36  | 
				
					 56  | 
			|
| 
					 1400  | 
				
					 1420  | 
				
					 1630  | 
				
					 1560  | 
				
					 36-M33  | 
				
					 44  | 
				
					 1675  | 
				
					 1590  | 
				
					 36-M39  | 
				
					 62  | 
			||
| 
					 1600  | 
				
					 1620  | 
				
					 380  | 
				
					 1830  | 
				
					 1760  | 
				
					 40-M33  | 
				
					 48  | 
				
					 1915  | 
				
					 1820  | 
				
					 40-M4  | 
				
					 68  | 
			|
| 
					 1800  | 
				
					 1820  | 
				
					 2045  | 
				
					 1970  | 
				
					 44-M36  | 
				
					 50  | 
				
					 2115  | 
				
					 2020  | 
				
					 44-M45  | 
				
					 70  | 
			||
| 
					 2000  | 
				
					 2020  | 
				
					 400  | 
				
					 2265  | 
				
					 2180  | 
				
					 48-M39  | 
				
					 54  | 
				
					 2325  | 
				
					 2230  | 
				
					 48-M45  | 
				
					 74  | 
			|
| 
					 2200  | 
				
					 2220  | 
				
					 2475  | 
				
					 2390  | 
				
					 52-M39  | 
				
					 60  | 
				
					 2550  | 
				
					 2440  | 
				
					 52-M52  | 
				
					 80  | 
			||
| 
					 2400  | 
				
					 2420  | 
				
					 2685  | 
				
					 2600  | 
				
					 56-M39  | 
				
					 62  | 
				
					 2760  | 
				
					 2650  | 
				
					 56-M52  | 
				
					 82  | 
			||
| 
					 2600  | 
				
					 2620  | 
				
					 450  | 
				
					 80  | 
				
					 2905  | 
				
					 2810  | 
				
					 60-M45  | 
				
					 64  | 
				
					 2960  | 
				
					 2850  | 
				
					 60-M52  | 
				
					 88  | 
			
| 
					 2800  | 
				
					 2820  | 
				
					 3115  | 
				
					 3020  | 
				
					 64-M45  | 
				
					 68  | 
				
					 3480  | 
				
					 3070  | 
				
					 64-M52  | 
				
					 94  | 
			||
| 
					 3000  | 
				
					 3020  | 
				
					 3315  | 
				
					 3220  | 
				
					 68-M45  | 
				
					 70  | 
				
					 3405  | 
				
					 3290  | 
				
					 68-M56  | 
				
					 100  | 
			||
| 
					 3200  | 
				
					 3220  | 
				
					 3525  | 
				
					 3430  | 
				
					 72-M45  | 
				
					 76  | 
				
					 
  | 
				|||||
 