

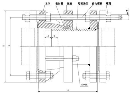
  傳力接頭是泵、閥門,管道等設備與管道連接的新產品,通過全螺栓把它們連接起來,使其成為整體,并有一定的位移量,方便安裝。可承受管線的軸向壓力。這樣就可以在安裝維修時,根據現場安裝尺寸進行調整,在工作時,不僅提高工作效率,而且對泵、閥們等管道設備起到一定保護作用。
	VSSJAF型雙法蘭松套傳力接頭適用范圍:
VSSJAF型雙法蘭松套傳力接頭適用于輸送海水、淡水、冷熱水、飲用水、生活污水、原油、燃油、潤滑油、成品油、空氣、煤氣、溫度不高于250度的蒸汽和顆粒粉狀等介質。
 VSSJAF型雙法蘭松套傳力接頭優點:
 1.安裝簡單方便、方便閥門安裝、可承受管線的軸向拉力。
 2.該產品采用金屬鑄造或組成,松套部位選用梯形橡膠密封圈,在壓蓋和螺栓的作用下。
 3.利用橡膠壓縮彈性變形原理。迫使密封圈變形于接頭本體伸縮管外壁之間進行靜密封。
 4.金屬和密封圈嚴格按使用性能及用戶要求選用。材質外部涂裝度防腐漆料,各部連接螺栓為   度碳鋼或不銹鋼制作。因為本體與伸縮管之間有一定間隙,使它具有一定的軸向和徑向位移。
 5.在管道中能的補償和管道和盲板推力,又能便于水泵,閥門的安裝維修更換,實為管道安裝運行業中為理想的配套產品。
VSSJAF型雙法蘭松套傳力接頭安裝簡要說明:
VSSJAF型雙法蘭松套傳力接頭適用于兩邊均與法蘭連接的管道中,安裝時調整產品兩端與法蘭的安裝長度,對角依次均勻擰緊壓螺栓,使其成為一個整體,并有一定的位移量,方便安裝維修時,根據現場尺寸進行調整在工作時,可以把軸向推力傳遞至整個管道。
		
	
技術參數:
| 
					 
						公稱通徑
					 
				 | 
				
					 
						管子外徑
					 
				 | 
				
					 
						外形尺寸
					 
				 | 
				
					 
						伸縮量
					 
				 | 
				
					 
						法蘭連接尺寸
					 
				 | 
			||||||
| 
					 
						Dw
					 
				 | 
				
					 
						L
					 
				 | 
				
					 
						L1
					 
				 | 
				
					 
						0.6MPa
					 
				 | 
				
					 
						1.0MPa
					 
				 | 
			||||||
| 
					 
						D
					 
				 | 
				
					 
						D1
					 
				 | 
				
					 
						n-d。
					 
				 | 
				
					 
						D
					 
				 | 
				
					 
						D1
					 
				 | 
				
					 
						n-d。
					 
				 | 
			|||||
| 
					 
						65
					 
				 | 
				
					 
						76
					 
				 | 
				
					 
						340
					 
				 | 
				
					 
						105
					 
				 | 
				
					 
						50
					 
				 | 
				
					 
						160
					 
				 | 
				
					 
						130
					 
				 | 
				
					 
						4-¢14
					 
				 | 
				
					 
						185
					 
				 | 
				
					 
						145
					 
				 | 
				
					 
						4-¢18
					 
				 | 
			
| 
					 
						80
					 
				 | 
				
					 
						89
					 
				 | 
				
					 
						190
					 
				 | 
				
					 
						150
					 
				 | 
				
					 
						4-¢18
					 
				 | 
				
					 
						200
					 
				 | 
				
					 
						160
					 
				 | 
				
					 
						8-¢18
					 
				 | 
			|||
| 
					 
						100
					 
				 | 
				
					 
						108
					 
				 | 
				
					 
						210
					 
				 | 
				
					 
						170
					 
				 | 
				
					 
						220
					 
				 | 
				
					 
						180
					 
				 | 
			|||||
| 
					 
						114
					 
				 | 
			||||||||||
| 
					 
						125
					 
				 | 
				
					 
						133
					 
				 | 
				
					 
						240
					 
				 | 
				
					 
						200
					 
				 | 
				
					 
						8-¢18
					 
				 | 
				
					 
						250
					 
				 | 
				
					 
						210
					 
				 | 
			||||
| 
					 
						140
					 
				 | 
			||||||||||
| 
					 
						150
					 
				 | 
				
					 
						159
					 
				 | 
				
					 
						265
					 
				 | 
				
					 
						225
					 
				 | 
				
					 
						285
					 
				 | 
				
					 
						240
					 
				 | 
				
					 
						8-¢22
					 
				 | 
			||||
| 
					 
						168
					 
				 | 
			||||||||||
| 
					 
						200
					 
				 | 
				
					 
						219
					 
				 | 
				
					 
						320
					 
				 | 
				
					 
						280
					 
				 | 
				
					 
						340
					 
				 | 
				
					 
						295
					 
				 | 
			|||||
| 
					 
						250
					 
				 | 
				
					 
						273
					 
				 | 
				
					 
						370
					 
				 | 
				
					 
						335
					 
				 | 
				
					 
						12-¢18
					 
				 | 
				
					 
						395
					 
				 | 
				
					 
						350
					 
				 | 
				
					 
						12-¢22
					 
				 | 
			|||
| 
					 
						300
					 
				 | 
				
					 
						325
					 
				 | 
				
					 
						350
					 
				 | 
				
					 
						130
					 
				 | 
				
					 
						65
					 
				 | 
				
					 
						440
					 
				 | 
				
					 
						395
					 
				 | 
				
					 
						12-¢22
					 
				 | 
				
					 
						445
					 
				 | 
				
					 
						400
					 
				 | 
			|
| 
					 
						350
					 
				 | 
				
					 
						377
					 
				 | 
				
					 
						490
					 
				 | 
				
					 
						445
					 
				 | 
				
					 
						505
					 
				 | 
				
					 
						460
					 
				 | 
				
					 
						16-¢22
					 
				 | 
			||||
| 
					 
						400
					 
				 | 
				
					 
						426
					 
				 | 
				
					 
						540
					 
				 | 
				
					 
						495
					 
				 | 
				
					 
						16-¢22
					 
				 | 
				
					 
						565
					 
				 | 
				
					 
						515
					 
				 | 
				
					 
						16-¢26
					 
				 | 
			|||
| 
					 
						450
					 
				 | 
				
					 
						480
					 
				 | 
				
					 
						595
					 
				 | 
				
					 
						550
					 
				 | 
				
					 
						615
					 
				 | 
				
					 
						565
					 
				 | 
				
					 
						20-¢26
					 
				 | 
			||||
| 
					 
						500
					 
				 | 
				
					 
						530
					 
				 | 
				
					 
						645
					 
				 | 
				
					 
						600
					 
				 | 
				
					 
						20-¢22
					 
				 | 
				
					 
						670
					 
				 | 
				
					 
						620
					 
				 | 
			||||
| 
					 
						600
					 
				 | 
				
					 
						630
					 
				 | 
				
					 
						755
					 
				 | 
				
					 
						705
					 
				 | 
				
					 
						20-¢26
					 
				 | 
				
					 
						780
					 
				 | 
				
					 
						725
					 
				 | 
				
					 
						20-¢30
					 
				 | 
			|||
| 
					 
						700
					 
				 | 
				
					 
						720
					 
				 | 
				
					 
						860
					 
				 | 
				
					 
						810
					 
				 | 
				
					 
						24-¢26
					 
				 | 
				
					 
						895
					 
				 | 
				
					 
						840
					 
				 | 
				
					 
						24-¢30
					 
				 | 
			|||
| 
					 
						800
					 
				 | 
				
					 
						820
					 
				 | 
				
					 
						590
					 
				 | 
				
					 
						220
					 
				 | 
				
					 
						130
					 
				 | 
				
					 
						975
					 
				 | 
				
					 
						920
					 
				 | 
				
					 
						24-¢30
					 
				 | 
				
					 
						1015
					 
				 | 
				
					 
						950
					 
				 | 
				
					 
						24-¢33
					 
				 | 
			
| 
					 
						900
					 
				 | 
				
					 
						920
					 
				 | 
				
					 
						1075
					 
				 | 
				
					 
						1020
					 
				 | 
				
					 
						1115
					 
				 | 
				
					 
						1015
					 
				 | 
				
					 
						28-¢33
					 
				 | 
			||||
| 
					 
						1000
					 
				 | 
				
					 
						1020
					 
				 | 
				
					 
						1175
					 
				 | 
				
					 
						1120
					 
				 | 
				
					 
						28-¢30
					 
				 | 
				
					 
						1230
					 
				 | 
				
					 
						1160
					 
				 | 
				
					 
						28-¢36
					 
				 | 
			|||
| 
					 
						1200
					 
				 | 
				
					 
						1220
					 
				 | 
				
					 
						1405
					 
				 | 
				
					 
						1340
					 
				 | 
				
					 
						32-¢33
					 
				 | 
				
					 
						1455
					 
				 | 
				
					 
						1380
					 
				 | 
				
					 
						32-¢40
					 
				 | 
			|||
| 
					 
						1400
					 
				 | 
				
					 
						1420
					 
				 | 
				
					 
						1630
					 
				 | 
				
					 
						1560
					 
				 | 
				
					 
						36-¢36
					 
				 | 
				
					 
						1675
					 
				 | 
				
					 
						1590
					 
				 | 
				
					 
						36-¢42
					 
				 | 
			|||
| 
					 
						1500
					 
				 | 
				
					 
						1520
					 
				 | 
				
					 
						1730
					 
				 | 
				
					 
						1660
					 
				 | 
				
					 
						-
					 
				 | 
				
					 
						-
					 
				 | 
				
					 
						-
					 
				 | 
			||||
| 
					 
						1600
					 
				 | 
				
					 
						1620
					 
				 | 
				
					 
						1830
					 
				 | 
				
					 
						1760
					 
				 | 
				
					 
						40-¢36
					 
				 | 
				
					 
						1915
					 
				 | 
				
					 
						1820
					 
				 | 
				
					 
						40-¢48
					 
				 | 
			|||
| 
					 
						1800
					 
				 | 
				
					 
						1820
					 
				 | 
				
					 
						2045
					 
				 | 
				
					 
						1970
					 
				 | 
				
					 
						44-¢40
					 
				 | 
				
					 
						2115
					 
				 | 
				
					 
						2020
					 
				 | 
				
					 
						44-¢48
					 
				 | 
			|||
| 
					 
						2000
					 
				 | 
				
					 
						2020
					 
				 | 
				
					 
						2265
					 
				 | 
				
					 
						2180
					 
				 | 
				
					 
						48-¢42
					 
				 | 
				
					 
						2325
					 
				 | 
				
					 
						2230
					 
				 | 
				
					 
						48-¢48
					 
				 | 
			|||
| 
					 
						2200
					 
				 | 
				
					 
						2220
					 
				 | 
				
					 
						2475
					 
				 | 
				
					 
						2390
					 
				 | 
				
					 
						52-¢42
					 
				 | 
				
					 
						2550
					 
				 | 
				
					 
						2440
					 
				 | 
				
					 
						52-¢56
					 
				 | 
			|||
| 
					 
						2400
					 
				 | 
				
					 
						2420
					 
				 | 
				
					 
						2685
					 
				 | 
				
					 
						2600
					 
				 | 
				
					 
						56-¢42
					 
				 | 
				
					 
						2760
					 
				 | 
				
					 
						2650
					 
				 | 
				
					 
						56-¢56
					 
				 | 
			|||
 